Wohnung Top 15 - VERKAUFT!
Diese Wohnung kann auch als Vorsorgewohnung erworben werden.
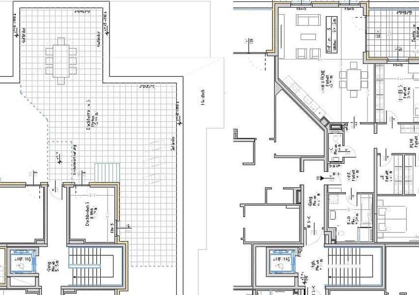
Kreuzensteiner Straße 25 / Chimanigasse 54, 2110 Korneuburg
Stockwerk: 2. Obergeschoss
Zimmer: 4
Wohnnutzfläche: 139,23 m²
Terrasse: 21,80 m²
Dachboden: 11,29 m²
Dachterrasse: 105,99 m²
Kellerabteil: 8,93 m²
Provisionsfrei für den Käufer!
Heizwärmebedarf:
HWBSK (kWh/m²a): 28
HWB-Klasse: B
fGEE: 0,73
Detailbeschreibung:
- Vorraum
- Wohnküche mit Ausgang zum Balkon
- 3 Zimmer
- Schrankraum
- 1 Bad
- separates WC
- Abstellraum
Ausstattung:
| Fußböden: | schwimmende Estriche auf Trittschalldämmung, darauf Isolierung und Fliesen bzw. Parkett |
| Wände: | verputzt und weiß beschichtet, Nassräume verfliest Höhe 211 cm, Scheidewände und Vorsatzschalen aus Gipskarton, weiß beschichtet |
| Decken: | gespachtelt und weiß beschichtet, abgehängte Decken in Fluren und Nassräumen |
| Fenster: | Kunststofffenster mit 3-fach Isolierverglasung (Uw-Wert max. 1,1 W/m²K, Rw-Wert mind. 38 dB), Beschattung mittels Außenrollladen (mechanisch) |
| Haustore: | mit Gegensprechanlage und Türöffner |
| Türen: | Innentüren: Holzzargen mit glatten Türblättern, Farbe weiß, Drückergarnitur silber eloxiert, Wohnungseingangstüren: EI²30-C, WK2 |
| Küche: | Vorsorgewohnungen: mit Einbauküche ausgestattet restliche Wohnungen: sämtliche Anschlüsse lt. Plan gerichtet (ohne Einbauküche) |
| Sanitärausstattung: | WC-Schale wandhängend Tiefspüler, Farbe weiß Waschtisch aus Sanitärkeramik, Farbe weiß bodenebene Dusche mit Duschtrennwand oder Einbaubadewanne, Handtuchheizkörper, jeweils 1 Stück |
| Balkone: | Terrassenplatten aufgeständert, Geländer aus Stahlunterkonstruktion mit Lochblechfüllung (verzinkt und beschichtet) |
| Lüftung: | alle innen liegenden Bäder und WC's werden mechanisch über Dach entlüftet |
Allgemein:
| Aufzug: | triebwerksraumloser Aufzug vom Kellergeschoss bis Dachterrasse |
| Stiegenhaus: | Fluchtwegorientierungsbeleuchtung (1 Hr.) in allen Geschossen gem. TRVB E-112. Rauchabzugseinrichtung durch Lichtkuppel (1,0m²) am obersten Podest Auslöseeinrichtung im EG und DG, unabhängig vom öffentl. Stromnetz und über ein rauchempfindliches Element an der Decke Feuerlöscher gemäß TRVB F-124, Stiegenhaus = eigener Brandabschnitt |
| Fluchtwege: | Der 2. Rettungsweg erfolgt über die Balkone durch Anleitern der Feuerwehr. |
| Garage/Parkplätze: | PKW-Ein- und Ausfahrt über Rampe, ampelgesteuert Abschluss durch Sektionaltor (über Funkhandsender gesteuert) im oberen Bereich der Rampe. Garage mit entsprechender Lüftung (natürlich) Sicherheitsbeleuchtung gem. ÖVI E-8002 bzw. gem. BTV NÖ §168 (3) Feuerlöscher gem. TRVB F-124. 11 PKW-Garagen-Stellplätze, davon einer als Stellplatz für Menschen mit Behinderung 16 PKW-Stellplätze im Freien, davon einer als Stellplatz für Menschen mit Behinderung. |
| Dachterrassen-Wohnungen: | Die Dachterrassenwohnungen sind mit einem zusätzlichen Dachbodenraum (Bodenausführung: Estrich – staubfrei) ausgestattet. |
Ver- und Entsorgung
| Wasser und Strom: | Anschluss am öffentlichen Netz |
| Kanal: | Anschluss am öffentlichen Schmutzwasserkanal |
| Regenwasser: | Versickerung auf eigenem Grund oder Anschluss am öffentlichen Regenwasserkanal |
| Heizung: | Fernwärmeübernahmestation, Fußbodenheizung |
| Elektroinstallationen: | komplette Licht- und Strominstallation einschließlich aller erforderlichen Schalter, Steckdosen, Deckenauslässen (ohne Beleuchtungskörper), Wohnzimmer mit Internet / Telefon und jedes Zimmer mit TV-Anschluss, Gegensprechanlage, Zähler: Stromzähler je Wohneinheit Im Freien, an den Ecken der PKW-Stellplätze, ist eine Leerverrohrung für den späteren Anschluss einer Ladestation für elektrisch betriebene Kraftfahrzeuge vorhanden. |
| Blitzschutz: | gemäß EVE 8001 |
| Außenanlagen: | Im Hof wird ein Spielplatz geschaffen. |
| Wege: | Betonplatten, restliche Flächen: begrünt |
| Müll: | Für die erforderlichen Sammelgefäße für Bio-Abfälle, Papier-, Plastik- und Restmüll wird ein entsprechender Müllplatz errichtet. |
| Einfriedung: | z.T. Betonsockel mit Maschendraht- bzw. Doppelstabgitterzaun, z.T. bleiben bestehende Zäune erhalten |


